효율등급제도
제품신고 및 검색 효율등급제도
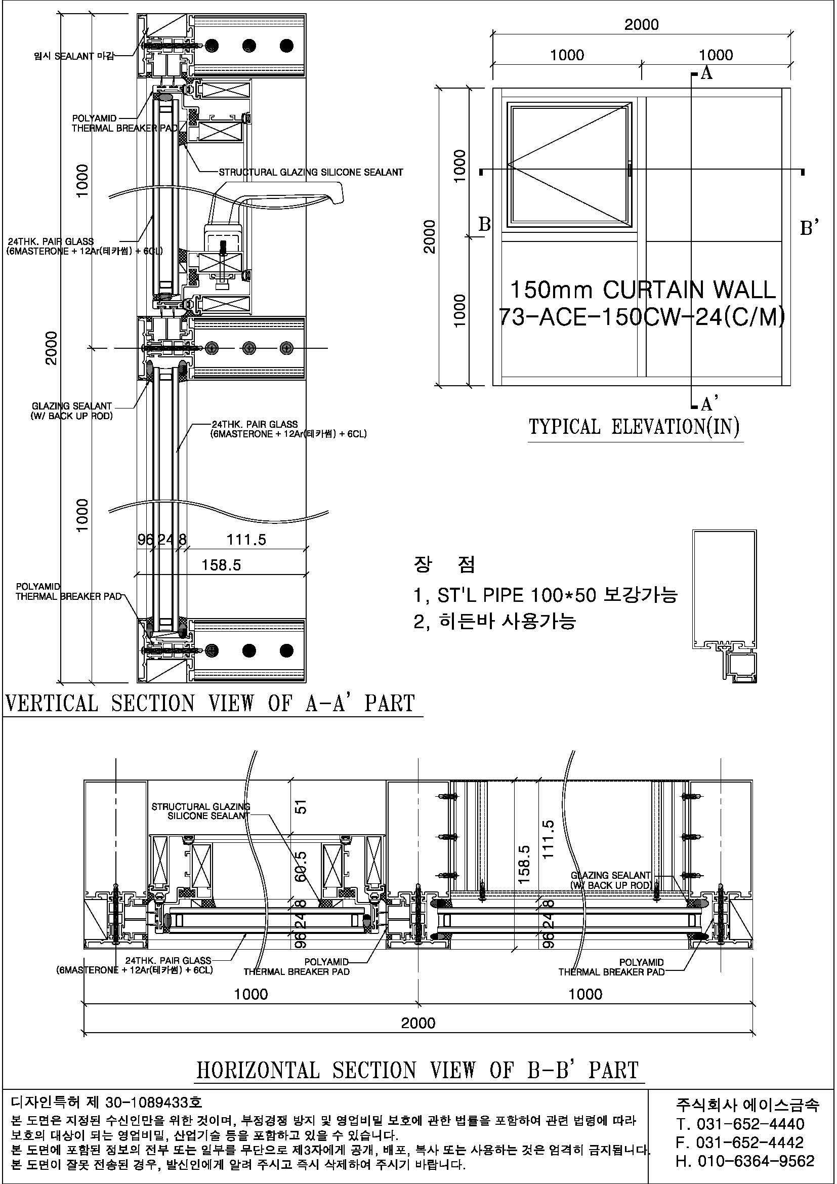
에너지소비효율 등급 정보
|
업체명 | (주)에이스금속 |
|---|---|---|
| 모델명 | 73-ACE-150CW-24(CM) | |
| 완료일자 | 2023-08-16 | |
| 시험기관 | 한국에너지성능연구개발원(경기광주) | |
| 구매연락처 / 제품설명 | ㈜에이스금속 커튼월 / 노출바 / 150x60mm / 24(금강 MASTER ONE) / 담당자 : 010-6364-9562 |
에너지소비효율 등급 제품상세 정보
| 업체명 | (주)에이스금속 | 완료일자 | 2023-08-16 |
|---|---|---|---|
| 모델명 | 73-ACE-150CW-24(CM) | 시험기관 | 한국에너지성능연구개발원(경기광주) |
| 국산/수입 | 국산 | ||
| 프레임재질 | 알루미늄 | 열관류율(W/m²ㆍK) | 1.289 |
| 유리1 | 24(일반6 /아르곤12 /로이(소프트코팅)6 /0 /0) | 유리2 | 0(0 /0 /0 /0 /0) |
| 유리3 | 0 | 기밀성등급 | |
| 개폐방식스윙 | 개폐방식슬라이딩 | ||
| 효율등급 | 3 | 구효율등급 |



